Trouvez le modèle de maison qui vous ressemble avec Batisoft

Constructeur de maisons individuelles en Gironde, Batisoft vous propose une large gamme de modèles, alliant style contemporain et tradition. Que vous rêviez d’une maison à étage, de plain-pied, en L ou en V, nous avons le plan qu’il vous faut.

Trouver un
plan de maison

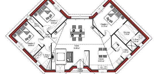
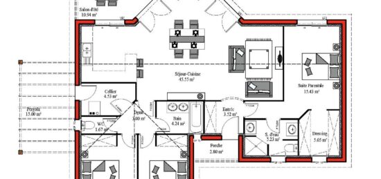
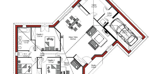
49 plans de maison identifiés

Caractéristiques

Caractéristiques du bien

Nombre de chambres

Plusieurs choix possibles

Nombre de pièces

Plusieurs choix possibles

Surface

Surface habitable

m2
m2