AUDACE

Plan maison 4 pièces 3 chambres Surface maison 100 à 125 m2

À PARTIR DE 168 380€

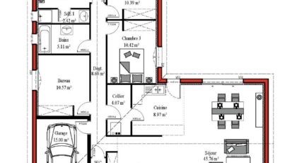
Avec sa forme en L et ses volumes généreux, AUDACE est une maison chaleureuse qui privilégie les espaces de vie ouverts et conviviaux. Son architecture équilibrée allie esthétique moderne et praticité, pour un confort de vie au quotidien.

Le séjour traversant baigne de lumière naturelle et communique directement avec la cuisine et le cellier, facilitant la circulation entre les pièces. La cuisine est ouverte ou fermée, selon les déclinaisons, ce qui est bien sûr modifiable selon vos préférences. Un hall d'entrée avec placard vous accueille dès l'entrée, protégé par un porche à la fois esthétique et fonctionnel.

Le modèle AUDACE propose 3 ou 4 chambres, toutes équipées de placards intégrés, ainsi qu'un double garage dans sa version la plus spacieuse. Son implantation en L permet de créer un véritable cocon à l'arrière de la maison, idéal pour accueillir une terrasse intimiste ou une piscine bien exposée.

Entièrement personnalisable, cette maison s'adapte à vos envies comme à votre mode de vie. Contactez notre conseiller pour concevoir un projet sur mesure.

Construire ce modèle ?

    * Champs obligatoires

    Vos informations sont traitées par BATISOFT et transmises à un conseiller commercial qui vous contactera afin de répondre à votre demande. Les plans et images présentés sur notre site sont la propriété de BATISOFT et ne peuvent pas être reproduits sans son accord. Pour retrouver notre politique de protection des données personnelles et exercer vos droits conformément à la « loi informatique et liberté » cliquez-ici.