Maison neuve à
Mios (33380) Référence : LC2484489_4

Prix du projet : Maison avec Terrain

prix 385 000 €

  • 4 pièces
  • 4 chambres
  • Surface maison 132 m2

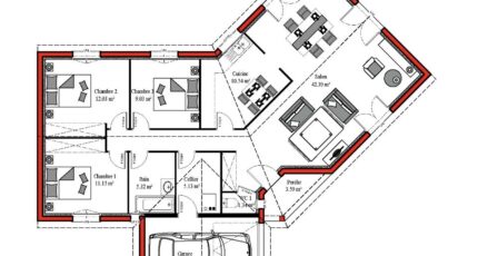
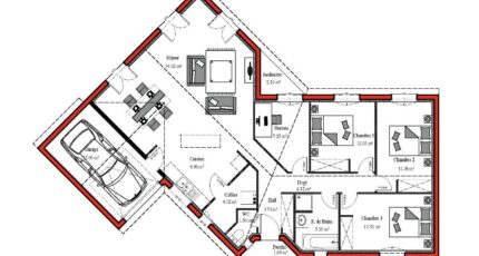
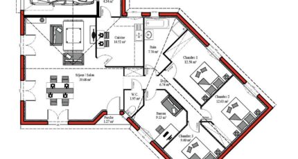
Mios : maison de 4 pièces (132 m²) en vente
PROCHE DE MÉRIGNAC - MAISON 4 PIÈCES NEUVE
À vendre : à 14 km de l'océan Atlantique et à 30 km de Mérignac, notre agence Batisoft La Teste-de-Buch est ravie de vous présenter cette maison de 4 pièces de plain-pied de 132 m² et de 630 m² de terrain à Mios (33380). Conçue de plain-pied, elle comporte quatre chambres, une cuisine et une salle de bains.
Cette maison est neuve.
Il y a l'École Maternelle la Fauvette Pitchou, l'École Élementaire les Ecureuils, l'École Secondaire Privée Montessori Bordeaux Mios, l'École Primaire Privée Montessori Mios Campus et le Collège Montessori Bordeaux Mios à moins de 10 minutes à pied. Niveau transports, on trouve les gares Biganos Facture et Le Teich à moins de 10 minutes en voiture. Les autoroutes A660 et A63 sont accessibles à moins de 8 km. Il y a un tennis, deux boulangeries, des commerces, un bureau de poste et une boucherie-charcuterie à proximité.
Elle est proposée à l'achat pour 385 000 €.
Prenez contact avec notre agence (Laurent CHAMPEIL : 05-57-15-12-37) pour toute question sur cette maison. Batisoft La Teste-de-Buch est là pour vous accompagner à toutes les étapes de votre projet.

Mentions légales

Idée de réalisation en modèle prêt à décorer sur l’un de nos terrains partenaires, sous réserve de disponibilités. Voir détails en agence.

Contactez l'agence de La Teste-de-Buch

05 57 15 12 37

    * Champs obligatoires

    Vos informations sont traitées par BATISOFT et transmises à un conseiller commercial qui vous contactera afin de répondre à votre demande. Les plans et images présentés sur notre site sont la propriété de BATISOFT et ne peuvent pas être reproduits sans son accord. Pour retrouver notre politique de protection des données personnelles et exercer vos droits conformément à la « loi informatique et liberté » cliquez-ici.