Maison neuve à
Mios (33380) Référence : LC2484405_3

Prix du projet : Maison avec Terrain

prix 405 000 €

  • 4 pièces
  • 3 chambres
  • Surface maison 112 m2

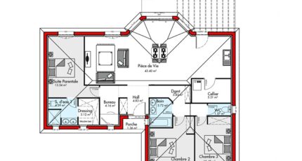
Maison de 4 pièces (85 m²) à vendre à Mios
MAISON 4 PIÈCES NEUVE -
Maison neuve 4 pièces à vendre. Surface de 85 m² et 650 m² de terrain. Son intérieur offre trois chambres, une cuisine et deux salles de bains.
Le terrain du bien est de 650 m².
Cette maison est neuve.
PROCHE BASSIN D'ARCACHON
HYPER CENTRE DU BOURG DE MIOS
À 14 km de la côte atlantique et à moins de 30 min de la rocade bordelaise , grand terrain. Il y a l'École Maternelle la Fauvette Pitchou, l'École Élementaire les Ecureuils, l'École Secondaire Privée Montessori, à 5 min à pieds et le Collège à 10 minutes à pied. Côté transports, on trouve deux gares (Biganos Facture et Le Teich) à moins de 10 minutes en voiture. Les autoroutes A660 et A63 sont accessibles à moins de 5 min. Il y a un tennis, deux boulangeries, des commerces, une boucherie-charcuterie et un bureau de poste, cabinet médical, banques, pharmacie à 2 min.
Il est proposé à l'achat pour 210 000 €. Prenez contact avec notre agence (Laurent CHAMPEIL : 05-57-15-12-37) pour plus de renseignements sur ce terrain, sur les modalités de vente ou sur les démarches à suivre. Batisoft La Teste-de-Buch vous accompagne à toutes les étapes de votre projet et dans tous vos projets immobiliers.
Elle est à vendre pour la somme de 340 000 €.
Contact O6 66 I8 II II

Elle est proposée à l'achat pour 405 000 €.
N'hésitez pas à prendre contact avec Laurent CHAMPEIL (05-57-15-12-37) pour toute question sur cette maison, sur les modalités de vente ou sur les démarches à suivre.

Mentions légales

Idée de réalisation en modèle prêt à décorer sur l’un de nos terrains partenaires, sous réserve de disponibilités. Voir détails en agence.

Contactez l'agence de La Teste-de-Buch

05 57 15 12 37

    * Champs obligatoires

    Vos informations sont traitées par BATISOFT et transmises à un conseiller commercial qui vous contactera afin de répondre à votre demande. Les plans et images présentés sur notre site sont la propriété de BATISOFT et ne peuvent pas être reproduits sans son accord. Pour retrouver notre politique de protection des données personnelles et exercer vos droits conformément à la « loi informatique et liberté » cliquez-ici.