TENDANCE

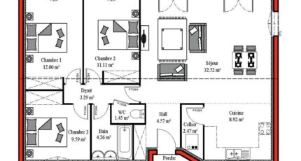
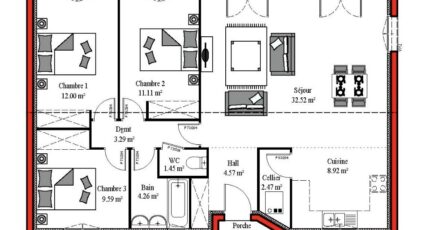
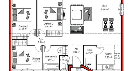
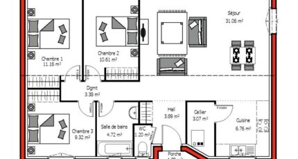
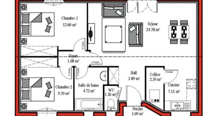
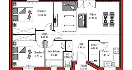
Plan maison 3 pièces 3 chambres Surface maison 65 à 90 m2

À PARTIR DE 115 880€

Naturelle et discrète, son agencement en fait la championne du rapport qualité-prix. TENDANCE est le modèle préféré de tous ceux qui privilégient confort et fonctionnalité dans une atmosphère accueillante et lumineuse.
Composé d'un grand espace de vie avec cuisine ouverte et cellier attenant, cette maison est entièrement personnalisable.
N'attendez plus, contactez notre conseiller!

Construire ce modèle ?

    * Champs obligatoires

    Vos informations sont traitées par BATISOFT et transmises à un conseiller commercial qui vous contactera afin de répondre à votre demande. Les plans et images présentés sur notre site sont la propriété de BATISOFT et ne peuvent pas être reproduits sans son accord. Pour retrouver notre politique de protection des données personnelles et exercer vos droits conformément à la « loi informatique et liberté » cliquez-ici.