HELIOS

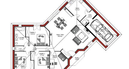
Plan maison 5 pièces 3 chambres Surface maison 112 m2

187 990€

Batisoft vous présente HELIOS, une maison familiale de 112 m2 avec garage de 15 m2. Elle offre un agencement des plus confortables avec de nombreux rangements et du volume. Cette villa traditionnelle a le charme des maisons girondines. Entrez par le séjour de 44 m² et traversez-le pour retrouver d'un côté la cuisine et de l'autre, l'espace nuit. Celui-ci regroupe 3 chambres et 1 bureau. Modulez le plan selon vos envies et vos priorités, notre bureau d'étude est là pour répondre à vos exigences.

Construire ce modèle ?

    * Champs obligatoires

    Vos informations sont traitées par BATISOFT et transmises à un conseiller commercial qui vous contactera afin de répondre à votre demande. Les plans et images présentés sur notre site sont la propriété de BATISOFT et ne peuvent pas être reproduits sans son accord. Pour retrouver notre politique de protection des données personnelles et exercer vos droits conformément à la « loi informatique et liberté » cliquez-ici.