EVOLUTIVE

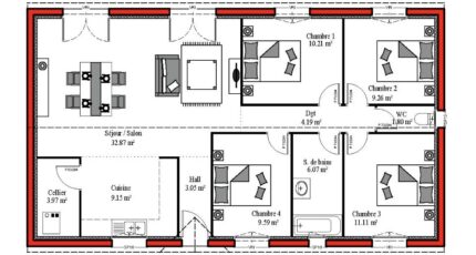
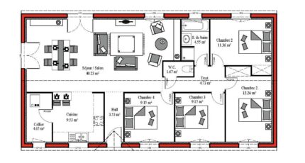
Plan maison 3 pièces 3 chambres Surface maison 78 à 110 m2

À PARTIR DE 117 710€

Simple et fonctionnel, le modèle ÉVOLUTIVE est composé d'un coin nuit de 3 ou 4 chambres avec une salle de bain et d'une pièce à vivre avec sa cuisine donnant directement sur le salon.

Construire ce modèle ?

    * Champs obligatoires

    Vos informations sont traitées par BATISOFT et transmises à un conseiller commercial qui vous contactera afin de répondre à votre demande. Les plans et images présentés sur notre site sont la propriété de BATISOFT et ne peuvent pas être reproduits sans son accord. Pour retrouver notre politique de protection des données personnelles et exercer vos droits conformément à la « loi informatique et liberté » cliquez-ici.