ECRIN

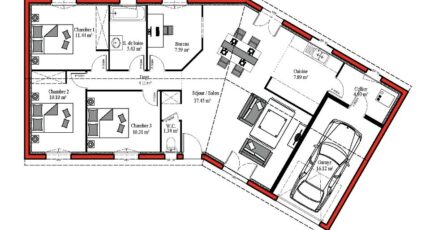
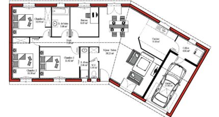
Plan maison 3 pièces 3 chambres Surface maison 80 à 107 m2

À PARTIR DE 135 840€

Eloignez-vous du vis-à-vis dans cette agréable maison en V de 100m² habitables. L'espace de vie ouvert sur l'extérieur se compose d'une entrée, d'un salon/séjour traversant et d'une cuisine ouverte avec cellier attenant. L'espace nuit comprend 3 chambres, une salle de bain et un bureau. Le garage de 16 m2 intégré au volume de la maison et communiquant avec le cellier sera apprécié des amateurs de bricolage.
Cette maison est entièrement personnalisable au gré de vos envies, n'hésitez plus à contacter nos conseillers BATISOFT.

Construire ce modèle ?

    * Champs obligatoires

    Vos informations sont traitées par BATISOFT et transmises à un conseiller commercial qui vous contactera afin de répondre à votre demande. Les plans et images présentés sur notre site sont la propriété de BATISOFT et ne peuvent pas être reproduits sans son accord. Pour retrouver notre politique de protection des données personnelles et exercer vos droits conformément à la « loi informatique et liberté » cliquez-ici.