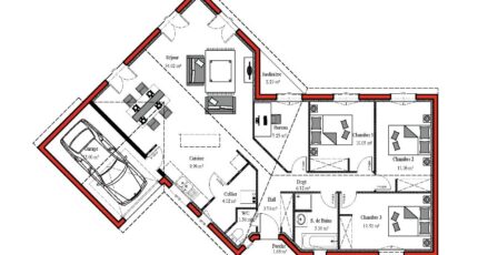
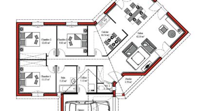
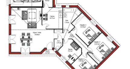
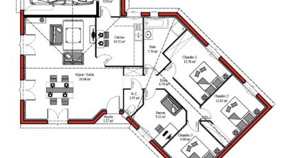
CYCLADE

Plan maison 4 pièces 4 chambres Surface maison 95 à 132 m2

À PARTIR DE 161 060€

Pénétrez dans une maison CYCLADE où l'art de vivre et l'harmonie vous raviront au quotidien. Séjour traversant, communication garage- cellier-cuisine, 3 ou 4 chambres.
La simplicité de sa ligne, la symétrie de son porche, lui donne un petit air bien sage. Évolutive par l'aménagement de son garage, elle vous apportera un vrai confort.

Construire ce modèle ?

    * Champs obligatoires

    Vos informations sont traitées par BATISOFT et transmises à un conseiller commercial qui vous contactera afin de répondre à votre demande. Les plans et images présentés sur notre site sont la propriété de BATISOFT et ne peuvent pas être reproduits sans son accord. Pour retrouver notre politique de protection des données personnelles et exercer vos droits conformément à la « loi informatique et liberté » cliquez-ici.