Maison neuve à
Targon (33760) Référence : DC2474754_4

Prix du projet : Maison avec Terrain

prix 228 690 €

  • 4 pièces
  • 3 chambres
  • Surface maison 100 m2

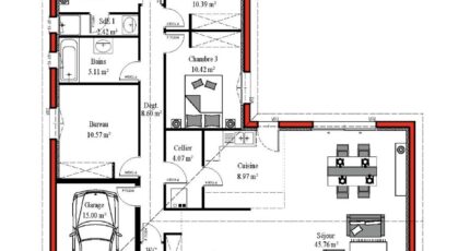
Maison de 4 pièces (100 m²) à vendre à Targon
IDÉALEMENT SITUÉE - MAISON 4 PIÈCES NEUVE
En vente à 27 km de Talence, idéalement située dans Targon (33760), venez découvrir cette maison de 4 pièces de plain-pied de 100 m². Conçue de plain-pied, elle dispose de trois chambres, d'une cuisine et d'une salle de bains.
Le terrain du bien est de 727 m².
La maison est neuve.
La maison se trouve dans un quartier prisé. L'École Primaire Jules Ferry est implantée à moins de 10 minutes à pied. L'autoroute A62 et la nationale N89 sont accessibles à moins de 17 km. On trouve une bibliothèque, un tennis, un commerce, une boulangerie, un supermarché et un bureau de poste à quelques minutes.
Elle est à vendre pour la somme de 228 690 €.
Prenez contact avec notre agence (David CAZAUBON : 06-11-78-42-56) pour plus d'informations sur la maison, sur les démarches à suivre ou sur les modalités de vente. Donnez vie à vos projets immobiliers avec Batisoft Bordeaux.

Mentions légales

Idée de réalisation en modèle prêt à décorer sur l’un de nos terrains partenaires, sous réserve de disponibilités. Voir détails en agence.

Contactez l'agence de Bordeaux

05 35 37 13 70

    * Champs obligatoires

    Vos informations sont traitées par BATISOFT et transmises à un conseiller commercial qui vous contactera afin de répondre à votre demande. Les plans et images présentés sur notre site sont la propriété de BATISOFT et ne peuvent pas être reproduits sans son accord. Pour retrouver notre politique de protection des données personnelles et exercer vos droits conformément à la « loi informatique et liberté » cliquez-ici.