Maison neuve à
Salles (33770) Référence : LC2431452_1

Prix du projet : Maison avec Terrain

prix 250 000 €

  • 3 pièces
  • 3 chambres
  • Surface maison 78 m2

Salles : maison de 3 pièces (78 m²) en vente
MAISON 3 PIÈCES NEUVE
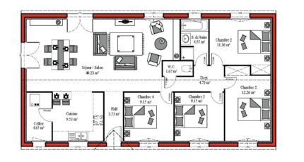
À vendre : à 21 km de la côte atlantique, Batisoft La Teste-de-Buch vous présente à Salles (33770), cette maison de 3 pièces de plain-pied de 78 m².
Son intérieur se divise en trois chambres, une cuisine et une salle de bains. Cette maison est neuve.
Le terrain de la propriété s'étend sur 390 m².
Des écoles (de la maternelle au lycée) sont implantées à moins de 10 minutes en voiture, tout comme une structure d'accueil pour les enfants en bas âge à moins de 10 minutes à pied. On trouve un accès à l'autoroute A63 à 7 km. Il y a deux bibliothèques, trois tennis, des commerces, trois supermarchés, des boulangeries, trois épiceries et deux bureaux de poste à proximité. Le marché Place du champ de foire anime les environs.
Elle est proposée à l'achat pour 250 000 €.
Contactez Laurent CHAMPEIL (05-57-15-12-37) pour toute question sur cette maison, sur les démarches à suivre ou sur les modalités de vente. Batisoft La Teste-de-Buch vous accompagne dans tous vos projets immobiliers et à toutes les étapes de votre projet.

Mentions légales

Idée de réalisation en modèle prêt à décorer sur l’un de nos terrains partenaires, sous réserve de disponibilités. Voir détails en agence.

Contactez l'agence de La Teste-de-Buch

05 57 15 12 37

    * Champs obligatoires

    Vos informations sont traitées par BATISOFT et transmises à un conseiller commercial qui vous contactera afin de répondre à votre demande. Les plans et images présentés sur notre site sont la propriété de BATISOFT et ne peuvent pas être reproduits sans son accord. Pour retrouver notre politique de protection des données personnelles et exercer vos droits conformément à la « loi informatique et liberté » cliquez-ici.