Maison neuve à
Mios (33380) Référence : LC2484420_4

Prix du projet : Maison avec Terrain

prix 441 000 €

  • 4 pièces
  • 4 chambres
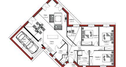
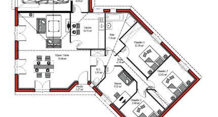
  • Surface maison 132 m2

VENTE d'une maison de 4 pièces (132 m²) à Mios
PROCHE DE MÉRIGNAC - MAISON 4 PIÈCES NEUVE
À vendre à 14 km de la côte atlantique et à 30 km de Mérignac, votre agence Batisoft La Teste-de-Buch est heureuse de vous présenter à Mios (33380), cette maison de 4 pièces de plain-pied de 132 m² et de 500 m² de terrain.
Elle comporte quatre chambres, une cuisine et une salle de bains. Cette maison est neuve.
L'École Maternelle la Fauvette Pitchou, l'École Élementaire les Ecureuils, l'École Secondaire Privée Montessori Bordeaux Mios, l'École Primaire Privée Montessori Mios Campus et le Collège Montessori Bordeaux Mios sont implantés à moins de 10 minutes à pied. Niveau transports, il y a les gares Biganos Facture et Le Teich à moins de 10 minutes en voiture. Les autoroutes A660 et A63 sont accessibles à moins de 8 km. On trouve un tennis, deux boulangeries, des commerces, un bureau de poste et une boucherie-charcuterie à proximité du logement.
Son prix de vente est de 460 000 €.
Prenez contact avec notre agence (Laurent CHAMPEIL : 05-57-15-12-37) pour plus de renseignements sur la maison, sur les modalités de vente ou sur les démarches à suivre. Concrétisez vos projets immobiliers avec Batisoft La Teste-de-Buch.

Mentions légales

Idée de réalisation en modèle prêt à décorer sur l’un de nos terrains partenaires, sous réserve de disponibilités. Voir détails en agence.

Contactez l'agence de La Teste-de-Buch

05 57 15 12 37

    * Champs obligatoires

    Vos informations sont traitées par BATISOFT et transmises à un conseiller commercial qui vous contactera afin de répondre à votre demande. Les plans et images présentés sur notre site sont la propriété de BATISOFT et ne peuvent pas être reproduits sans son accord. Pour retrouver notre politique de protection des données personnelles et exercer vos droits conformément à la « loi informatique et liberté » cliquez-ici.