Maison neuve à
Le Teich (33470) Référence : LC2474564_2

Prix du projet : Maison avec Terrain

prix 342 000 €

  • 3 pièces
  • 3 chambres
  • Surface maison 60 m2

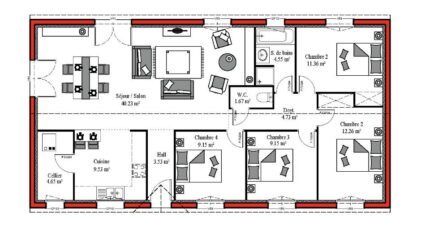
VENTE d'une maison de 3 pièces (60 m²) au Teich
MAISON 3 PIÈCES NEUVE
En vente : localisée sur la côte atlantique, découvrez cette maison de 3 pièces de plain-pied de 60 m² au Teich (33470).
Elle est composée de trois chambres, d'une cuisine et d'une salle de bains. Cette maison est neuve.
Le terrain du bien est de 602 m².
Il y a l'École Primaire Delta à moins de 10 minutes à pied et une crèche. Niveau transports, on trouve la gare Le Teich dans les environs. On trouve un accès à l'autoroute A660 à 3 km. Il y a des commerces, une boulangerie, un supermarché, un bureau de poste et une poissonnerie à quelques minutes.
Son prix de vente est de 342 000 €.
Contactez notre agence (CHAMPEIL Laurent : 05-57-15-12-37) pour toute information sur la maison.

Mentions légales

Idée de réalisation en modèle prêt à décorer sur l’un de nos terrains partenaires, sous réserve de disponibilités. Voir détails en agence.

Contactez l'agence de La Teste-de-Buch

05 57 15 12 37

    * Champs obligatoires

    Vos informations sont traitées par BATISOFT et transmises à un conseiller commercial qui vous contactera afin de répondre à votre demande. Les plans et images présentés sur notre site sont la propriété de BATISOFT et ne peuvent pas être reproduits sans son accord. Pour retrouver notre politique de protection des données personnelles et exercer vos droits conformément à la « loi informatique et liberté » cliquez-ici.