Maison neuve à
Le Porge (33680) Référence : LC932LPORGE_4

Prix du projet : Maison avec Terrain

prix 380 000 €

  • 4 pièces
  • 3 chambres
  • Surface maison 125 m2

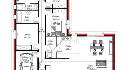
Maison F4 (125 m²) en vente au Porge
PROCHE DE SAINT-MÉDARD-EN-JALLES ET OCEAN- MAISON 4 PIÈCES NEUVE
À vendre : à 13 km de l'océan Atlantique et à 28 km de Saint-Médard-en-Jalles, Batisoft La Teste-de-Buch vous propose cette maison de 4 pièces de plain-pied de 125 m² et de 932 m² de terrain au Porge (33680). Elle compte trois chambres, une cuisine et une salle de bains.
Cette maison est neuve.
L'École Primaire Jean Degoul est implantée à moins de 10 minutes à pied. Il y a un tennis, trois boulangeries, deux commerces, un supermarché, un bureau de poste et une boucherie-charcuterie à proximité.
Elle est à vendre pour la somme de 380 000 €.
Contactez notre agence (Laurent CHAMPEIL : 05-57-15-12-37) pour obtenir de plus amples renseignements sur cette maison.

Contactez l'agence de La Teste-de-Buch

05 57 15 12 37

    * Champs obligatoires

    Vos informations sont traitées par BATISOFT et transmises à un conseiller commercial qui vous contactera afin de répondre à votre demande. Les plans et images présentés sur notre site sont la propriété de BATISOFT et ne peuvent pas être reproduits sans son accord. Pour retrouver notre politique de protection des données personnelles et exercer vos droits conformément à la « loi informatique et liberté » cliquez-ici.