Maison neuve à
Guîtres (33230) Référence : LC465GUITRE_4

Prix du projet : Maison avec Terrain

prix 260 000 €

  • 4 pièces
  • 3 chambres
  • Surface maison 125 m2

VENTE : maison T4 (125 m²) à Guîtres
MAISON 4 PIÈCES NEUVE
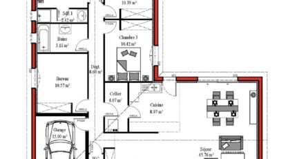
À vendre : à 40 km de la côte atlantique, nous vous proposons cette maison de 4 pièces de plain-pied de 125 m² et de 465 m² de terrain à Guîtres (33230). Son intérieur se divise en trois chambres, une cuisine et une salle de bains.
Cette maison est neuve.
Le Collège Jean Aviotte, l'École Maternelle Boutoule et l'École Élémentaire André Godin sont implantés à moins de 10 minutes à pied. Niveau transports, on trouve deux gares (Coutras et Saint-Denis-de-Pile) à moins de 10 minutes en voiture. On trouve un accès à l'autoroute A89 à 8 km. Il y a une bibliothèque, un tennis, deux commerces, deux boulangeries, une boucherie-charcuterie et une épicerie dans les environs.
Son prix de vente est de 260 000 €.
Contactez Laurent CHAMPEIL (tél : 05-57-15-12-37) pour tout renseignement sur la maison ou sur les démarches à suivre.

Contactez l'agence de La Teste-de-Buch

05 57 15 12 37

    * Champs obligatoires

    Vos informations sont traitées par BATISOFT et transmises à un conseiller commercial qui vous contactera afin de répondre à votre demande. Les plans et images présentés sur notre site sont la propriété de BATISOFT et ne peuvent pas être reproduits sans son accord. Pour retrouver notre politique de protection des données personnelles et exercer vos droits conformément à la « loi informatique et liberté » cliquez-ici.