Maison neuve à
Bonnetan (33370) Référence : DC2478155_2

Prix du projet : Maison avec Terrain

prix 326 410 €

  • 5 pièces
  • 3 chambres
  • Surface maison 112 m2

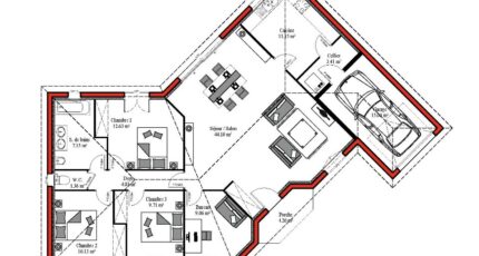
Maison F5 (112 m²) à vendre à Bonnetan
IDÉALEMENT SITUÉE - MAISON 5 PIÈCES NEUVE
À vendre à 66 km de l'océan Atlantique et à 18 km de Bordeaux, idéalement située dans Bonnetan (33370), nous sommes ravis de vous proposer cette maison de 5 pièces de plain-pied de 112 m².
Son intérieur est composé de trois chambres, d'une cuisine et d'une salle de bains. Cette maison est neuve.
Le terrain du bien est de 800 m².
Cette maison est située dans un secteur recherché. On trouve l'École Primaire Chante Rainette à moins de 10 minutes à pied. L'autoroute A630 et les nationales N89 et N230 sont accessibles à moins de 10 km.
Son prix de vente est de 326 410 €.
Contactez David CAZAUBON (O6-11-78-42-56) pour toute question sur la maison ou sur les modalités de vente.

Mentions légales

Idée de réalisation en modèle prêt à décorer sur l’un de nos terrains partenaires, sous réserve de disponibilités. Voir détails en agence.

Contactez l'agence de Bordeaux

05 35 37 13 70

    * Champs obligatoires

    Vos informations sont traitées par BATISOFT et transmises à un conseiller commercial qui vous contactera afin de répondre à votre demande. Les plans et images présentés sur notre site sont la propriété de BATISOFT et ne peuvent pas être reproduits sans son accord. Pour retrouver notre politique de protection des données personnelles et exercer vos droits conformément à la « loi informatique et liberté » cliquez-ici.