Maison neuve à
Biganos (33380) Référence : LC582BIGANOS_5

Prix du projet : Maison avec Terrain

prix 380 000 €

  • 4 pièces
  • 3 chambres
  • Surface maison 125 m2

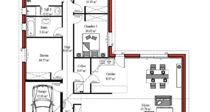
VENTE : maison T4 (125 m²) à Biganos
MAISON 4 PIÈCES NEUVE
À vendre : à 8 km de l'océan Atlantique et à quelques kilomètres de Mérignac, ayez le coup de coeur pour à Biganos (33380), cette maison de 4 pièces de plain-pied de 125 m². Conçue de plain-pied, elle propose trois chambres, une cuisine et une salle de bains.
Le terrain de la propriété est de 582 m².
Cette maison est neuve.
L'École Élementaire Jules Ferry, l'École Maternelle Marcel Pagnol et le Collège Jean Zay se trouvent à moins de 10 minutes à pied. Niveau transports, il y a la gare Biganos Facture à proximité. L'autoroute A660 est accessible à 3 km. On trouve deux tennis, des commerces, trois boulangeries, un bureau de poste, une épicerie et deux boucheries-charcuteries à quelques minutes du bien.
Elle est proposée à l'achat pour 380 000 €.
Contactez notre agence (CHAMPEIL Laurent : 05-57-15-12-37) pour obtenir de plus amples informations sur la maison. Batisoft La Teste-de-Buch vous accompagne dans tous vos projets immobiliers et dans toutes vos démarches.

Mentions légales

Idée de réalisation en modèle prêt à décorer sur l’un de nos terrains partenaires, sous réserve de disponibilités. Voir détails en agence.

Contactez l'agence de La Teste-de-Buch

05 57 15 12 37

    * Champs obligatoires

    Vos informations sont traitées par BATISOFT et transmises à un conseiller commercial qui vous contactera afin de répondre à votre demande. Les plans et images présentés sur notre site sont la propriété de BATISOFT et ne peuvent pas être reproduits sans son accord. Pour retrouver notre politique de protection des données personnelles et exercer vos droits conformément à la « loi informatique et liberté » cliquez-ici.