Maison neuve à
Salles (33770) Référence : LC879LE38_1

Prix du projet : Maison avec Terrain

prix 415 000 €

  • 4 pièces
  • 3 chambres
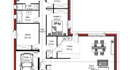
  • Surface maison 125 m2

Salles : maison F4 (125 m²) à vendre
MAISON 4 PIÈCES NEUVE
À vendre : située à 21 km de la côte atlantique, à Salles (33770), Batisoft La Teste-de-Buch vous présente cette maison de 4 pièces de plain-pied de 125 m². Conçue de plain-pied, elle est composée de trois chambres, d'une cuisine et d'une salle de bains.
Le terrain de cette maison s'étend sur 879 m².
Cette maison est neuve.
Des écoles (de la maternelle au lycée) sont implantées à moins de 10 minutes en voiture, tout comme une structure d'accueil pour les tout-petits à moins de 10 minutes à pied. Il y a un accès à l'autoroute A63 à 7 km. On trouve deux bibliothèques, trois tennis, des commerces, trois supermarchés, des boulangeries, des boucheries-charcuteries et deux bureaux de poste dans les environs. Enfin, le marché Place du champ de foire anime le quartier.
Elle est à vendre pour la somme de 415 000 €.
N'hésitez pas à prendre contact avec notre agence (Laurent CHAMPEIL : 05-57-15-12-37) pour obtenir de plus amples renseignements sur la maison ou sur les modalités de vente. Batisoft La Teste-de-Buch est là pour vous accompagner à toutes les étapes de l'achat.

Contactez l'agence de La Teste-de-Buch

05 57 15 12 37

    * Champs obligatoires

    Vos informations sont traitées par BATISOFT et transmises à un conseiller commercial qui vous contactera afin de répondre à votre demande. Les plans et images présentés sur notre site sont la propriété de BATISOFT et ne peuvent pas être reproduits sans son accord. Pour retrouver notre politique de protection des données personnelles et exercer vos droits conformément à la « loi informatique et liberté » cliquez-ici.