Maison neuve à
Saint-Selve (33650) Référence : DC2439167_2

Prix du projet : Maison avec Terrain

prix 349 000 €

  • 4 pièces
  • 3 chambres
  • Surface maison 100 m2

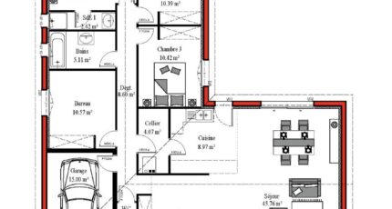
Maison T4 (100 m²) à vendre à Saint-Selve
IDÉALEMENT SITUÉE - MAISON 4 PIÈCES NEUVE
En vente : localisée à 66 km de la côte atlantique et à quelques kilomètres de Bordeaux, Batisoft Bordeaux vous présente cette maison de 4 pièces de plain-pied de 100 m², idéalement située dans Saint-Selve (33650). Conçue de plain-pied, elle inclut trois chambres, une cuisine et une salle de bains.
Le terrain de cette maison s'étend sur 1 400 m².
La maison est neuve.
Cette maison est située dans un quartier prisé. Il y a l'École Primaire Privée Claire de Castelbajac, l'École Primaire les Platanes et le Collège de Saint-Selve à moins de 10 minutes à pied. Niveau transports, on trouve cinq gares à moins de 10 minutes en voiture. Il y a un tennis, deux commerces et une boulangerie à proximité.
Elle est à vendre pour la somme de 349 000 €.
N'hésitez pas à prendre contact avec David CAZAUBON (O6-11-78-42-56) pour plus d'informations sur la maison ou sur les modalités de vente. Batisoft Bordeaux est là pour vous accompagner dans tous vos projets immobiliers.

Mentions légales

Idée de réalisation en modèle prêt à décorer sur l’un de nos terrains partenaires, sous réserve de disponibilités. Voir détails en agence.

Contactez l'agence de Bordeaux

05 35 37 13 70

    * Champs obligatoires

    Vos informations sont traitées par BATISOFT et transmises à un conseiller commercial qui vous contactera afin de répondre à votre demande. Les plans et images présentés sur notre site sont la propriété de BATISOFT et ne peuvent pas être reproduits sans son accord. Pour retrouver notre politique de protection des données personnelles et exercer vos droits conformément à la « loi informatique et liberté » cliquez-ici.