Maison neuve à
Pissos (40410) Référence : LC755Pissos_4

Prix du projet : Maison avec Terrain

prix 290 000 €

  • 4 pièces
  • 4 chambres
  • Surface maison 132 m2

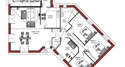
Maison T4 (132 m²) en vente à Pissos
MAISON 4 PIÈCES NEUVE
À vendre à Pissos (40410), Batisoft La Teste-de-Buch vous présente cette maison de 4 pièces de plain-pied de 132 m² et de 755 m² de terrain.
Conçue de plain-pied, elle inclut quatre chambres, une cuisine et une salle de bains. La maison est neuve.
Il y a une école primaire dans le quartier. On trouve un accès à l'autoroute A63 à 9 km. On trouve un tennis, un bassin de natation, une boulangerie, un commerce, un bureau de poste et une supérette dans les environs.
Elle est à vendre pour la somme de 290 000 €.
N'hésitez pas à prendre contact avec Laurent CHAMPEIL (05-57-15-12-37) pour plus de renseignements sur le bien ou sur les démarches à suivre.

Contactez l'agence de La Teste-de-Buch

05 57 15 12 37

    * Champs obligatoires

    Vos informations sont traitées par BATISOFT et transmises à un conseiller commercial qui vous contactera afin de répondre à votre demande. Les plans et images présentés sur notre site sont la propriété de BATISOFT et ne peuvent pas être reproduits sans son accord. Pour retrouver notre politique de protection des données personnelles et exercer vos droits conformément à la « loi informatique et liberté » cliquez-ici.