Maison neuve à
Parentis-en-Born (40160) Référence : LC2419226_7

Prix du projet : Maison avec Terrain

prix 305 000 €

  • 4 pièces
  • 3 chambres
  • Surface maison 125 m2

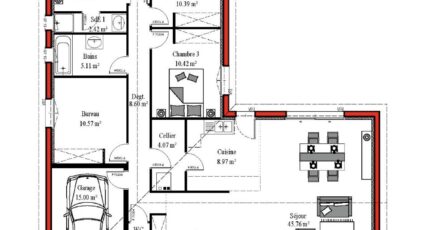
Maison de 4 pièces (125 m²) en vente à Pontenx-les-Forges
MAISON 4 PIÈCES NEUVE
À vendre : à 21 km de l'océan Atlantique, à Pontenx-les-Forges (40200), nous vous proposons cette maison de 4 pièces de plain-pied de 125 m². Son intérieur est composé de trois chambres, d'une cuisine et d'une salle de bains.
Le terrain de la maison est de 590 m².
La maison est neuve.
Une école primaire est implantée dans le quartier. L'autoroute A63 est accessible à 16 km. Il y a deux tennis, un commerce, une boulangerie et une épicerie à quelques minutes du logement.
Elle est proposée à l'achat pour 305 000 €.
Contactez Laurent CHAMPEIL (tél : 05-57-15-12-37) pour tout renseignement sur cette maison, sur les modalités de vente ou sur les démarches à suivre. Batisoft La Teste-de-Buch vous accompagne dans tous vos projets immobiliers et à toutes les étapes de votre projet.

Mentions légales

Idée de réalisation en modèle prêt à décorer sur l’un de nos terrains partenaires, sous réserve de disponibilités. Voir détails en agence.

Contactez l'agence de La Teste-de-Buch

05 57 15 12 37

    * Champs obligatoires

    Vos informations sont traitées par BATISOFT et transmises à un conseiller commercial qui vous contactera afin de répondre à votre demande. Les plans et images présentés sur notre site sont la propriété de BATISOFT et ne peuvent pas être reproduits sans son accord. Pour retrouver notre politique de protection des données personnelles et exercer vos droits conformément à la « loi informatique et liberté » cliquez-ici.