Maison neuve à
Mimizan (40200) Référence : FD2407892_1

Prix du projet : Maison avec Terrain

prix 239 500 €

  • 4 pièces
  • 3 chambres
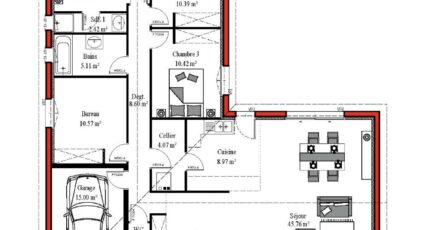
  • Surface maison 100 m2

VENTE d'une maison de 4 pièces (100 m²) à Pontenx-les-Forges
IDÉALEMENT SITUÉE - MAISON 4 PIÈCES NEUVE
À vendre : à 21 km de la côte atlantique, venez découvrir, idéalement située dans Pontenx-les-Forges (40200), cette maison de 4 pièces de plain-pied de 100 m² et de 655 m² de terrain.
Elle se divise en trois chambres, une cuisine et une salle de bains. Cette maison est neuve.
La maison est située dans un quartier convoité. On y trouve une école primaire. L'autoroute A63 est accessible à 16 km. Il y a deux tennis, un commerce, une boulangerie et une épicerie à quelques minutes.
Son prix de vente est de 239 500 €.
Prenez contact avec notre agence (DELAGE Franck : 06-09-89-36-05) pour toute question sur le bien, sur les démarches à suivre ou sur les modalités de vente. Donnez vie à vos projets immobiliers avec Batisoft Bordeaux.

Mentions légales

Idée de réalisation en modèle prêt à décorer sur l’un de nos terrains partenaires, sous réserve de disponibilités. Voir détails en agence.

Contactez l'agence de Bordeaux

05 35 37 13 70

    * Champs obligatoires

    Vos informations sont traitées par BATISOFT et transmises à un conseiller commercial qui vous contactera afin de répondre à votre demande. Les plans et images présentés sur notre site sont la propriété de BATISOFT et ne peuvent pas être reproduits sans son accord. Pour retrouver notre politique de protection des données personnelles et exercer vos droits conformément à la « loi informatique et liberté » cliquez-ici.