Maison neuve à
Mimizan (40200) Référence : FD2407884_1

Prix du projet : Maison avec Terrain

prix 298 500 €

  • 5 pièces
  • 3 chambres
  • Surface maison 112 m2

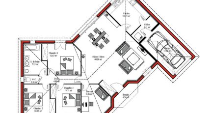
Maison de 5 pièces (112 m²) en vente à Pontenx-les-Forges
IDÉALEMENT SITUÉE - MAISON 5 PIÈCES NEUVE
À vendre : localisée à 21 km de l'océan Atlantique, idéalement située dans Pontenx-les-Forges (40200), découvrez cette maison de 5 pièces de plain-pied de 112 m². Son intérieur compte trois chambres, une cuisine et une salle de bains.
Le terrain de la propriété s'étend sur 655 m².
Cette maison est neuve.
La maison est située dans un quartier recherché. Une école primaire y est implantée. L'autoroute A63 est accessible à 16 km. Il y a deux tennis, un commerce, une boulangerie et une épicerie dans les environs.
Elle est proposée à l'achat pour 298 500 €.
Contactez Franck DELAGE (tél : O6-09-89-36-05) pour toute information sur la maison ou sur les modalités de vente. Batisoft Bordeaux est là pour vous accompagner dans tous vos projets immobiliers.

Mentions légales

Idée de réalisation en modèle prêt à décorer sur l’un de nos terrains partenaires, sous réserve de disponibilités. Voir détails en agence.

Contactez l'agence de Bordeaux

05 35 37 13 70

    * Champs obligatoires

    Vos informations sont traitées par BATISOFT et transmises à un conseiller commercial qui vous contactera afin de répondre à votre demande. Les plans et images présentés sur notre site sont la propriété de BATISOFT et ne peuvent pas être reproduits sans son accord. Pour retrouver notre politique de protection des données personnelles et exercer vos droits conformément à la « loi informatique et liberté » cliquez-ici.