Maison neuve à
Léognan (33850) Référence : GL2266195_1

Prix du projet : Maison avec Terrain

prix 398 564 €

  • 4 pièces
  • 3 chambres
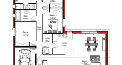
  • Surface maison 100 m2

Modèle AUDACE est une maison accueillante qui offre de larges espaces de convivialité. Sa volumétrie équilibrée et sa forme en L assurent une esthétique parfaite tout en gardant un esprit fonctionnel : séjour traversant, communication de garage-cellier-cuisine, 3 ou 4 chambres.
Chiffré sur base de 100M2 et garage 15M2,
Pour plus de renseignements sur ce modèle personnalisé
veuillez contactez notre conseiller Mr LEGESNE pour la personnaliser et l'adapter à vos envies.
Tous frais frais inclus (taxes, raccord, branchements, notaire, ...) sauf peinture, faïences et cuisine.
Tel: O6 77 80 80 45

Contactez l'agence de Bordeaux

05 35 37 13 70

    * Champs obligatoires

    Vos informations sont traitées par BATISOFT et transmises à un conseiller commercial qui vous contactera afin de répondre à votre demande. Les plans et images présentés sur notre site sont la propriété de BATISOFT et ne peuvent pas être reproduits sans son accord. Pour retrouver notre politique de protection des données personnelles et exercer vos droits conformément à la « loi informatique et liberté » cliquez-ici.