Maison neuve à
Le Teich (33470) Référence : LC2419253_3

Prix du projet : Maison avec Terrain

prix 460 000 €

  • 4 pièces
  • 4 chambres
  • Surface maison 132 m2

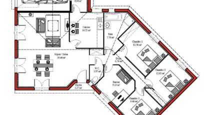
Le Teich : maison de 4 pièces (132 m²) à vendre
MAISON 4 PIÈCES NEUVE
Sur la côte atlantique, Batisoft La Teste-de-Buch vous propose en vente au Teich (33470), cette maison de 4 pièces de plain-pied de 132 m² et de 646 m² de terrain.
Elle inclut quatre chambres, une cuisine et une salle de bains. La maison est neuve.
Il y a l'École Primaire Delta à moins de 10 minutes à pied et une structure d'accueil pour les tout-petits. Côté transports en commun, on trouve la gare Le Teich dans les alentours. Il y a un accès à l'autoroute A660 à 3 km. Il y a des commerces, une boulangerie, un supermarché, un bureau de poste et une poissonnerie à quelques minutes.
Elle est proposée à l'achat pour 460 000 €.
Prenez contact avec Laurent CHAMPEIL (05-57-15-12-37) pour plus d'informations sur cette maison, sur les modalités de vente ou sur les démarches à suivre. Batisoft La Teste-de-Buch est là pour vous accompagner dans tous vos projets immobiliers.

Mentions légales

Idée de réalisation en modèle prêt à décorer sur l’un de nos terrains partenaires, sous réserve de disponibilités. Voir détails en agence.

Contactez l'agence de La Teste-de-Buch

05 57 15 12 37

    * Champs obligatoires

    Vos informations sont traitées par BATISOFT et transmises à un conseiller commercial qui vous contactera afin de répondre à votre demande. Les plans et images présentés sur notre site sont la propriété de BATISOFT et ne peuvent pas être reproduits sans son accord. Pour retrouver notre politique de protection des données personnelles et exercer vos droits conformément à la « loi informatique et liberté » cliquez-ici.