Maison neuve à
Le Teich (33470) Référence : LC602leteich_5

Prix du projet : Maison avec Terrain

prix 445 000 €

  • 4 pièces
  • 3 chambres
  • Surface maison 125 m2

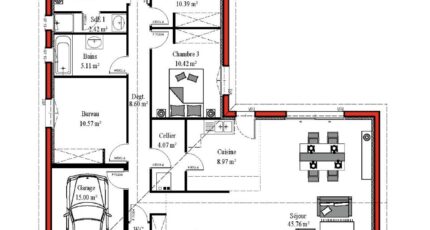
Le Teich : maison T4 (125 m²) à vendre
MAISON 4 PIÈCES NEUVE
En vente sur le littoral atlantique, au Teich (33470), votre agence Batisoft La Teste-de-Buch est heureuse de vous proposer cette maison de 4 pièces de plain-pied de 125 m².
Elle inclut trois chambres, une cuisine et une salle de bains. Cette maison est neuve.
Le terrain de la propriété est de 602 m².
Il y a l'École Primaire Delta à moins de 10 minutes à pied et une structure d'accueil pour les enfants en bas âge. Niveau transports, on trouve la gare Le Teich dans les environs. Il y a un accès à l'autoroute A660 à 3 km. Il y a des commerces, une boulangerie, un supermarché, une poissonnerie et trois boucheries-charcuteries à proximité.
Son prix de vente est de 445 000 €.
Contactez notre agence (CHAMPEIL Laurent : 05-57-15-12-37) pour obtenir de plus amples renseignements sur ce bien ou sur les démarches à suivre. Faites de vos projets immobiliers une réalité avec Batisoft La Teste-de-Buch.

Mentions légales

Idée de réalisation en modèle prêt à décorer sur l’un de nos terrains partenaires, sous réserve de disponibilités. Voir détails en agence.

Contactez l'agence de La Teste-de-Buch

05 57 15 12 37

    * Champs obligatoires

    Vos informations sont traitées par BATISOFT et transmises à un conseiller commercial qui vous contactera afin de répondre à votre demande. Les plans et images présentés sur notre site sont la propriété de BATISOFT et ne peuvent pas être reproduits sans son accord. Pour retrouver notre politique de protection des données personnelles et exercer vos droits conformément à la « loi informatique et liberté » cliquez-ici.