Maison neuve à
Hourtin (33990) Référence : DC2414336_1

Prix du projet : Maison avec Terrain

prix 275 600 €

  • 4 pièces
  • 3 chambres
  • Surface maison 100 m2

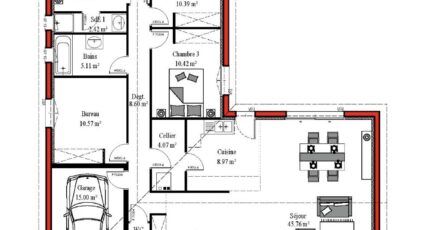
VENTE d'une maison de 4 pièces (100 m²) à Hourtin
EMPLACEMENT PRIVILÉGIÉ - MAISON 4 PIÈCES NEUVE
À vendre : à 13 km de l'océan Atlantique, bénéficiant d'un emplacement privilégié dans Hourtin (33990), nous sommes ravis de vous présenter cette maison de 4 pièces de plain-pied de 100 m². Elle dispose de trois chambres, d'une cuisine et d'une salle de bains.
Le terrain de la propriété s'étend sur 401 m².
La maison est neuve.
Cette propriété se situe dans un secteur attractif. Le Collège Jules Chambrelent et l'École Primaire J.G. Teyssier se trouvent à moins de 10 minutes à pied, tout comme deux structures d'accueil pour la petite enfance. Il y a des commerces, une boulangerie, deux supermarchés, une supérette et une poissonnerie à quelques minutes à peine.
Son prix de vente est de 275 600 €.
N'hésitez pas à prendre contact avec David CAZAUBON (O6-11-78-42-56) pour plus de renseignements sur la maison, sur les modalités de vente ou sur les démarches à suivre.

Mentions légales

Idée de réalisation en modèle prêt à décorer sur l’un de nos terrains partenaires, sous réserve de disponibilités. Voir détails en agence.

Contactez l'agence de Bordeaux

05 35 37 13 70

    * Champs obligatoires

    Vos informations sont traitées par BATISOFT et transmises à un conseiller commercial qui vous contactera afin de répondre à votre demande. Les plans et images présentés sur notre site sont la propriété de BATISOFT et ne peuvent pas être reproduits sans son accord. Pour retrouver notre politique de protection des données personnelles et exercer vos droits conformément à la « loi informatique et liberté » cliquez-ici.