Maison neuve à
Guîtres (33230) Référence : FD2407941_1

Prix du projet : Maison avec Terrain

prix 286 500 €

  • 4 pièces
  • 3 chambres
  • Surface maison 112 m2

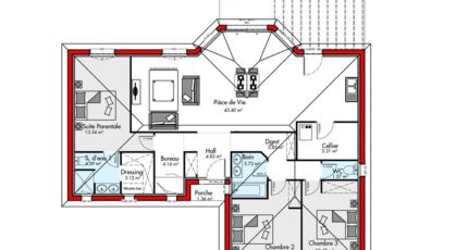
Maison F4 (112 m²) en vente à Guîtres
IDÉALEMENT SITUÉE - MAISON 4 PIÈCES NEUVE
À vendre : à 40 km de la côte atlantique, nous sommes heureux de vous présenter, idéalement située dans Guîtres (33230), cette maison de 4 pièces de plain-pied de 112 m² et de 764 m² de terrain. Elle est composée de trois chambres, d'une cuisine et d'une salle de bains.
Cette maison est neuve.
Cette maison est située dans un quartier recherché. Le Collège Jean Aviotte, l'École Maternelle Boutoule et l'École Élémentaire André Godin sont implantés à moins de 10 minutes à pied. Niveau transports en commun, il y a les gares Coutras et Saint-Denis-de-Pile à moins de 10 minutes en voiture. On trouve un accès à l'autoroute A89 à 8 km. On trouve une bibliothèque, un tennis, deux commerces, deux boulangeries, une boucherie-charcuterie et une épicerie à proximité.
Son prix de vente est de 286 500 €.
Contactez notre agence (Franck DELAGE : O6-09-89-36-05) pour obtenir de plus amples renseignements sur la propriété, sur les démarches à suivre ou sur les modalités de vente. Concrétisez vos projets immobiliers avec Batisoft Bordeaux.

Mentions légales

Idée de réalisation en modèle prêt à décorer sur l’un de nos terrains partenaires, sous réserve de disponibilités. Voir détails en agence.

Contactez l'agence de Bordeaux

05 35 37 13 70

    * Champs obligatoires

    Vos informations sont traitées par BATISOFT et transmises à un conseiller commercial qui vous contactera afin de répondre à votre demande. Les plans et images présentés sur notre site sont la propriété de BATISOFT et ne peuvent pas être reproduits sans son accord. Pour retrouver notre politique de protection des données personnelles et exercer vos droits conformément à la « loi informatique et liberté » cliquez-ici.