Maison neuve à
Floirac (33270) Référence : DC2381481_1

Prix du projet : Maison avec Terrain

prix 276 910 €

  • 3 pièces
  • 3 chambres
  • Surface maison 85 m2

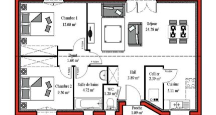
VENTE : maison de 3 pièces (85 m²) à Floirac
IDÉALEMENT SITUÉE - MAISON 3 PIÈCES NEUVE
À 9 km de Bordeaux, découvrez cette maison de 3 pièces de plain-pied de 85 m² en vente, idéalement située dans Floirac (33270).
Conçue de plain-pied, elle propose trois chambres, une cuisine et une salle de bains. La maison est neuve.
Le terrain du bien s'étend sur 300 m².
La maison se trouve dans un secteur convoité. Il y a des écoles primaires à moins de 10 minutes à pied, tout comme une crèche. Côté transports en commun, on trouve 11 gares à moins de 10 minutes en voiture. Les autoroutes A630 et A10 et les nationales N230 et N89 sont accessibles à moins de 7 km. Il y a un bassin de natation, une bibliothèque, une boulangerie, des commerces, un supermarché, un bureau de poste et une boucherie-charcuterie à quelques minutes du logement.
Elle est proposée à l'achat pour 276 910 €.
N'hésitez pas à prendre contact avec David CAZAUBON (O6-11-78-42-56) pour plus de renseignements sur la maison. Faites de vos projets immobiliers une réalité avec Batisoft Bordeaux.

Mentions légales

Idée de réalisation en modèle prêt à décorer sur l’un de nos terrains partenaires, sous réserve de disponibilités. Voir détails en agence.

Contactez l'agence de Bordeaux

05 35 37 13 70

    * Champs obligatoires

    Vos informations sont traitées par BATISOFT et transmises à un conseiller commercial qui vous contactera afin de répondre à votre demande. Les plans et images présentés sur notre site sont la propriété de BATISOFT et ne peuvent pas être reproduits sans son accord. Pour retrouver notre politique de protection des données personnelles et exercer vos droits conformément à la « loi informatique et liberté » cliquez-ici.