Maison neuve à
Brach (33480) Référence : FD2343845_2

Prix du projet : Maison avec Terrain

prix 287 000 €

  • 4 pièces
  • 3 chambres
  • Surface maison 100 m2

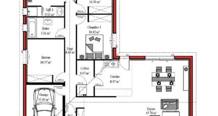
VENTE d'une maison F4 (100 m²) à Brach
QUARTIER RECHERCHÉ - MAISON 4 PIÈCES NEUVE
À 27 km de l'océan Atlantique et à quelques kilomètres de Saint-Médard-en-Jalles, découvrez en vente, dans un quartier recherché de Brach (33480), cette maison de 4 pièces de plain-pied de 100 m² et de 885 m² de terrain.
Elle compte trois chambres, une cuisine et une salle de bains. La maison est neuve.
Cette maison se trouve dans un secteur convoité. On y trouve une école primaire. Il y a une bibliothèque, une boulangerie, un commerce et une épicerie à quelques minutes.
Son prix de vente est de 287 000 €.
N'hésitez pas à prendre contact avec notre agence (Franck DELAGE : O6-09-89-36-05) pour plus d'informations sur la maison ou sur les modalités de vente. Batisoft Bordeaux est là pour vous accompagner à toutes les étapes de votre projet.

Contactez l'agence de Bordeaux

05 35 37 13 70

    * Champs obligatoires

    Vos informations sont traitées par BATISOFT et transmises à un conseiller commercial qui vous contactera afin de répondre à votre demande. Les plans et images présentés sur notre site sont la propriété de BATISOFT et ne peuvent pas être reproduits sans son accord. Pour retrouver notre politique de protection des données personnelles et exercer vos droits conformément à la « loi informatique et liberté » cliquez-ici.