Maison neuve à
Biganos (33380) Référence : LC2347291_3

Prix du projet : Maison avec Terrain

prix 390 000 €

  • 5 pièces
  • 4 chambres
  • Surface maison 125 m2

Biganos : maison T4 (125 m²) en vente
PROCHE DE MÉRIGNAC - MAISON 4 PIÈCES NEUVE
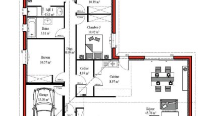
À vendre sur le littoral atlantique et à deux pas de Mérignac, à Biganos (33380), votre agence Batisoft La Teste-de-Buch est heureuse de vous proposer cette maison de 4 pièces de plain-pied de 125 m².
Son intérieur compte trois chambres, une cuisine et une salle de bains. La maison est neuve.
Le terrain de la propriété est de 582 m².
Il y a l'École Élementaire Jules Ferry, l'École Maternelle Marcel Pagnol et le Collège Jean Zay à moins de 10 minutes à pied. Côté transports, on trouve la gare Biganos Facture dans un rayon de 1 km. On trouve un accès à l'autoroute A660 à 3 km. Il y a deux tennis, des commerces, trois boulangeries, une poissonnerie, deux boucheries-charcuteries et un bureau de poste à quelques minutes.
Il est à vendre pour la somme de 390 000 €.
Contactez notre agence (Laurent CHAMPEIL : O6 66 I8 II II) pour plus de renseignements sur cette maison ou sur les démarches à suivre. Batisoft La Teste-de-Buch vous accompagne à toutes les étapes de l'achat et dans tous vos projets immobiliers.

Contactez l'agence de La Teste-de-Buch

05 57 15 12 37

    * Champs obligatoires

    Vos informations sont traitées par BATISOFT et transmises à un conseiller commercial qui vous contactera afin de répondre à votre demande. Les plans et images présentés sur notre site sont la propriété de BATISOFT et ne peuvent pas être reproduits sans son accord. Pour retrouver notre politique de protection des données personnelles et exercer vos droits conformément à la « loi informatique et liberté » cliquez-ici.